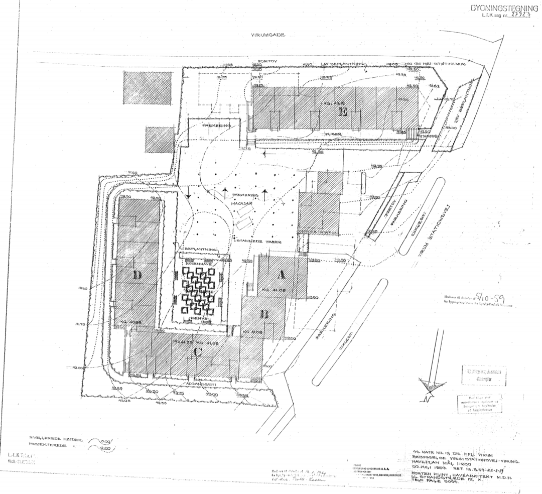
Bygningerne 141-145 (blok A, B, C og D) og 149 (blok E)
Denne del af ejendommen er tegnet af arkitekterne Poul Hessellund Andersen og Uwe Kaastrup-Olsen i tegnestue Granbakken 10, Bistrup, Birkerød.
Byggeriet forgik i årene 1960 til 1962, hvor det stod færdigt.

PDF dokument med alle oprindelige plantegninger af blokkene fra 1959 kan downloads herunder:
Bygning 147
Denne del af ejendommen blev opført i årene 2012-2013 af Dan Ejendomsbyg A/S.
Opførelsen af bygning 147 er sket på en grund mellem blok A og Blok E, hvor der tidligere lå et bilværksted.
Ejerforeningen
Ejerforeningen Virum Stationsvej 141-149 blev stiftet i 1981.
Samlet med de gamle bygninger 141-145 (blok A, B, C og D) og 149 (blok E) og den nye bygning 147 er der i alt 55 ejerlejligheder.
